اجرای سیستم گرمایش از کف یکی از مراحل کلیدی در ساختوسازهای نوین است که مستقیماً بر کارایی، دوام و راحتی سیستم گرمایش از کف تأثیر میگذارد. اگر برایتان سؤال است که گرمایش از کف چگونه اجرا می شود و سیستم گرمایش از کف چگونه کار میکند، این راهنما به طور جامع نحوه اجرا، انواع چیدمان لولهها و اهمیت عایقکاری را توضیح میدهد.
نحوه اجرای سیستم گرمایش از کف
اجرای سیستم گرمایش از کف فرآیندی چند مرحلهای و دقیق است که باید توسط متخصصین انجام شود تا عملکرد بهینه سیستم تضمین گردد. مراحل کلی اجرا به شرح زیر است:
آمادهسازی زیرساخت
قبل از هر اقدامی، سطح کف باید کاملاً تمیز، صاف و تراز باشد. هرگونه ناهمواری یا آلودگی میتواند بر نحوه نصب عایق و لولهها تأثیر بگذارد.
عایقکاری حرارتی (مرحله حیاتی)
این مرحله بسیار مهم است و در بخش جداگانه به آن پرداختهایم. عایقکاری تضمین میکند که گرما به جای نفوذ به طبقات پایین، به سمت بالا و محیط مورد نظر منتقل شود.
نحوه اجرای سیستم گرمایش از کف
اجرای سیستم گرمایش از کف فرآیندی چند مرحلهای و دقیق است که باید توسط متخصصین انجام شود تا عملکرد بهینه سیستم تضمین گردد. مراحل کلی اجرا به شرح زیر است:
آمادهسازی زیرساخت
قبل از هر اقدامی، سطح کف باید کاملاً تمیز، صاف و تراز باشد. هرگونه ناهمواری یا آلودگی میتواند بر نحوه نصب عایق و لولهها تأثیر بگذارد.
عایقکاری حرارتی (مرحله حیاتی)
این مرحله بسیار مهم است و در بخش جداگانه به آن پرداختهایم. عایقکاری تضمین میکند که گرما به جای نفوذ به طبقات پایین، به سمت بالا و محیط مورد نظر منتقل شود.
نصب کلکتور (توزیعکننده)
کلکتور که وظیفه توزیع آب گرم به مدارهای مختلف و بازگشت آب سرد شده را بر عهده دارد، در یک محل مناسب (معمولاً در نزدیکی منبع گرمایش) نصب میشود.
نقشهکشی و نصب لولهها
لولههای مخصوص گرمایش از کف عموماً PEX یا PERT بر اساس نقشهای دقیق که از پیش طراحی شده است، روی عایق حرارتی نصب و محکم میشوند.
تست فشار (Hydrostatic Testing)
پس از اتمام لولهکشی، سیستم با آب پر شده و تحت فشار قرار میگیرد تا از عدم وجود هرگونه نشتی و صحت اتصالات اطمینان حاصل شود. این تست باید قبل از بتنریزی انجام شود.
بتنریزی یا ملاتریزی نهایی
لولهها با یک لایه از بتن سبک یا ملات پوشانده میشوند (به این لایه “اسکرین” یا “پوشش رویی” گفته میشود). این لایه، رسانای اصلی گرما است که حرارت را به صورت یکنواخت به سطح نهایی کف منتقل میکند.
عایق کاری گرمایش از کف چگونه اجرا میشود؟
عایقکاری گرمایش از کف یکی از مهمترین عوامل در تعیین بازدهی انرژی سیستم است و به این سؤال که سیستم گرمایش از کف چگونه کار میکند، پاسخ میدهد. اگر عایقکاری ضعیف باشد، بخش زیادی از گرما به جای گرم کردن فضا، به سمت زمین یا طبقات زیرین هدر میرود.
نحوه اجرای عایقکاری:
- استفاده از شیتهای عایق: رایجترین روش، استفاده از فومهای عایق پلیاستایرن XPS یا EPS با دانسیته بالا است. این فومها علاوه بر عایق حرارتی، میتوانند نقش عایق صوتی را نیز ایفا کنند.
- عایقکاری حاشیهای (Edge Insulation): برای جلوگیری از انتقال حرارت به دیوارهای جانبی ساختمان، نوارهای عایق نرم در امتداد دیوارهای محیطی نصب میشوند. این نوارها همچنین فضای لازم برای انبساط حرارتی بتن را فراهم میکنند.
- شیتهای شیاردار: برخی عایقها به صورت شیاردار یا دارای برجستگی (Studded Mats) تولید میشوند که نصب لولهها را بسیار آسانتر و سریعتر میکنند.
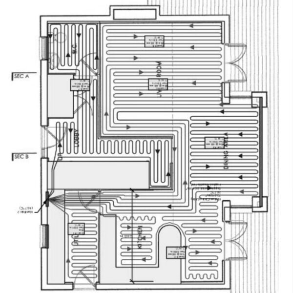
نقشهکشی گرمایش از کف و چیدمان لولهها چگونه است؟
نقشهکشی دقیق مهمترین بخش اجرای سیستم گرمایش از کف است و مستقیماً نحوه کارکرد سیستم را مشخص میکند. این نقشهکشی، محل دقیق لولهها، فواصل بین آنها، و نحوه اتصال به کلکتور را تعیین میکند.
اصول نقشهکشی:
- محاسبه بار حرارتی: ابتدا باید میزان گرمای مورد نیاز هر اتاق محاسبه شود.
- تعیین فاصله بین لولهها (Spacing): فاصله لولهها (معمولاً ۱۰ تا ۳۰ سانتیمتر) بر اساس نوع اتاق و میزان گرمای مورد نیاز تعیین میشود. مناطق سردتر و حاشیههای پنجرهها ممکن است نیاز به لولهکشی با فاصله کمتر داشته باشند.
- انتخاب الگوی چیدمان: دو الگوی اصلی برای چیدمان لولهها وجود دارد: مارپیچی (Snail/Spiral) و سرپانتینی (Serpentine).
انواع نحوه اجرای گرمایش از کف (الگوهای چیدمان)
در پاسخ به این سؤال که سیستم گرمایش از کف چگونه است از نظر چیدمان، دو روش رایج وجود دارد که هر کدام مزایا و معایب خاص خود را دارند:
| ویژگی | توضیح مزیت اصلی | نتیجه برای کاربر | کلمات کلیدی مرتبط |
| یکنواختی دمایی | لولههای رفت (آب گرمتر) و برگشت (آب سردتر) به صورت متناوب و نزدیک به هم در کنار یکدیگر قرار میگیرند. | جلوگیری از ایجاد نوارهای سرد و گرم در سطح کف، ایجاد گرمایش کاملاً یکنواخت و آسایش بیشتر. | گرمایش از کف، سیستم جدید، توزیع یکنواخت حرارت، سیستم گرمایش کف خانه |
| کنترل دما در مرکز | شروع نصب از محیط خارجی دیوار و حرکت به سمت مرکز اتاق، تضمین میکند که مرکز اتاق نیز به خوبی گرم شود. | عملکرد بهینه سیستم مرکز گرمی و جلوگیری از وجود نقاط سرد در قلب اتاقها. | راندمان گرمایش، کنترل دما |
| کارآمدی اجرایی | این الگو نیاز به خمکاریهای تیز (۹۰ درجه) ندارد و باعث میشود افت فشار کمتری در مدارها ایجاد شود. | نصب سریعتر و آسانتر، و عملکرد بهتر پمپ در به گردش درآوردن آب. | نصب گرمایش از کف، بهینهسازی سیستم |
توزیع گرمای یکنواختتر، آب ورودی و خروجی در کنار هم قرار میگیرند و دمای سطح کف را یکدست میکنند.
سرپانتینی (Serpentine) لوله به صورت رفت و برگشتی و موازی (مانند مار) نصب میشود.Getty Images
نصب سریعتر و سادهتر، برای فضاهای باریک یا مناطق با نیاز حرارتی بالاتر در یک سمت (مثلاً نزدیک پنجره) مناسب است.
نکته فنی: الگوی مارپیچی به دلیل توزیع حرارت متعادلتر، معمولاً برای کل فضای خانه ترجیح داده میشود، اما الگوی سرپانتینی میتواند برای مناطق خاصی که نیاز به حرارتدهی متمرکز دارند، تنظیم شود.
اجرای موفق سیستم گرمایش از کف نیازمند یک طرح دقیق، مواد باکیفیت و نصب حرفهای است تا از عملکرد بهینه و طول عمر بالای سیستم خود مطمئن باشید.
🎯 نتیجهگیری
اجرای موفق سیستم گرمایش از کف نیازمند برنامهریزی دقیق، نقشهکشی حسابشده و اجرای اصولی است. فهمیدن اینکه گرمایش از کف چگونه اجرا می شود و چگونگی عملکرد آن (سیستم گرمایش از کف چگونه کار میکند) نشان میدهد که مراحل کلیدی مانند عایقکاری، انتخاب الگوی چیدمان مناسب (مارپیچی یا سرپانتینی) و انجام تست فشار، همگی برای تضمین کارایی بالا، توزیع یکنواخت گرما و عمر طولانی سیستم گرمایش از کف ضروری هستند. این دقت در اجرای سیستم گرمایش از کف، بازدهی و آسایش نهایی سیستم را تضمین میکند.

بدون نظر